Developerský projekt s investičním potenciálem – pozemek 1 327 m² s domem k rekonstrukci / přestavbě
7 900 000 czk
Hledáte zajímavou developerskou příležitost s možností další výstavby? Nabízíme projekt s výrazným potenciálem v ploše určené územním plánem pro bydlení (B).
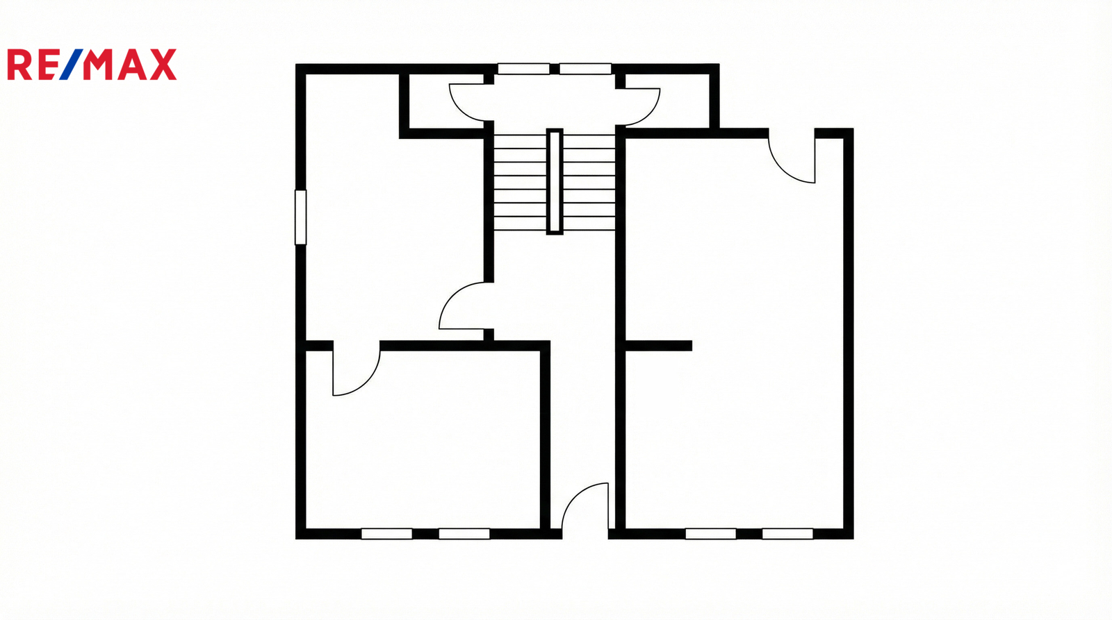
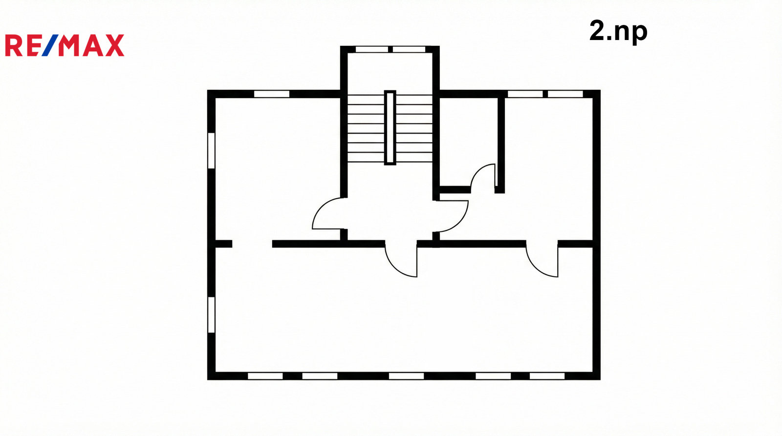
Na pozemku o celkové výměře 1 327 m² se nachází stávající dům o užitné ploše cca 426 m², určený k rekonstrukci či kompletní přestavbě. Dispozice a velikost objektu umožňují rozdělení na více bytových jednotek, vybudování vícegeneračního bydlení nebo kombinaci rezidenční a komerční funkce.
Klíčové investiční parametry:
-Celková plocha pozemku: 1 327 m²
-Zahrada: 847 m² (rovinatá, dobře využitelná)
-Užitná plocha domu: cca 426 m²
-Napojení na veškeré inženýrské sítě (elektřina, plyn, veřejný vodovod)
-Územní plán: plocha B – bydlení
-Možnost další výstavby nebo rozšíření stávající zástavby
Možné scénáře využití:
-Rekonstrukce na bytový dům s několika jednotkami
-Přestavba na řadové / dvojdomy
-Výstavba dalšího samostatného rodinného domu v zadní části pozemku
-Projekt vícegeneračního bydlení
-Kombinace bydlení a podnikání
Rovinatý charakter pozemku a jeho velikost umožňují efektivní zastavění i řešení parkovacích kapacit. Lokalita a územní určení dávají projektu flexibilitu a dlouhodobou hodnotu.
Tato nabídka představuje ideální příležitost pro developera či investora, který hledá projekt s možností optimalizace návratnosti prostřednictvím rekonstrukce, rozdělení na jednotky nebo nové výstavby.
Pro více informací nebo prohlídku nás neváhejte kontaktovat.
Podrobné informace
Podobné inzeráty
Zobrazit více podobných nabídek



































